REHAU NEA Smart 2.0 Felületfűtés-hűtés szabályozástechnika beüzemelés, szerviz, távfelügyelet.
REHAU NEA Smart 2.0 Felületfűtés-hűtés szabályozástechnika beüzemelés, szerviz, távfelügyelet.
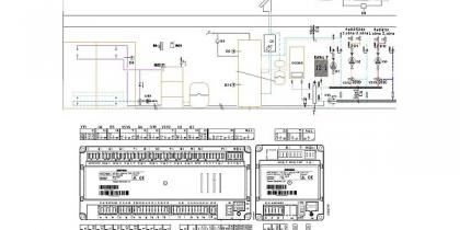
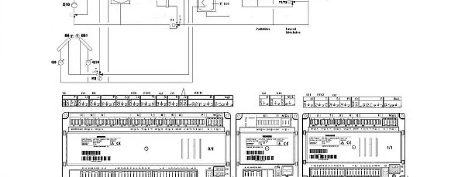
Több termosztátos szabályzórendszer vezetékes kommunikációval, hűtés- és fűtésszabályozási funkciókkal.